x
≡ Menu
Chi siamo Progetti Contatti

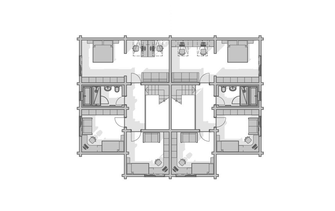
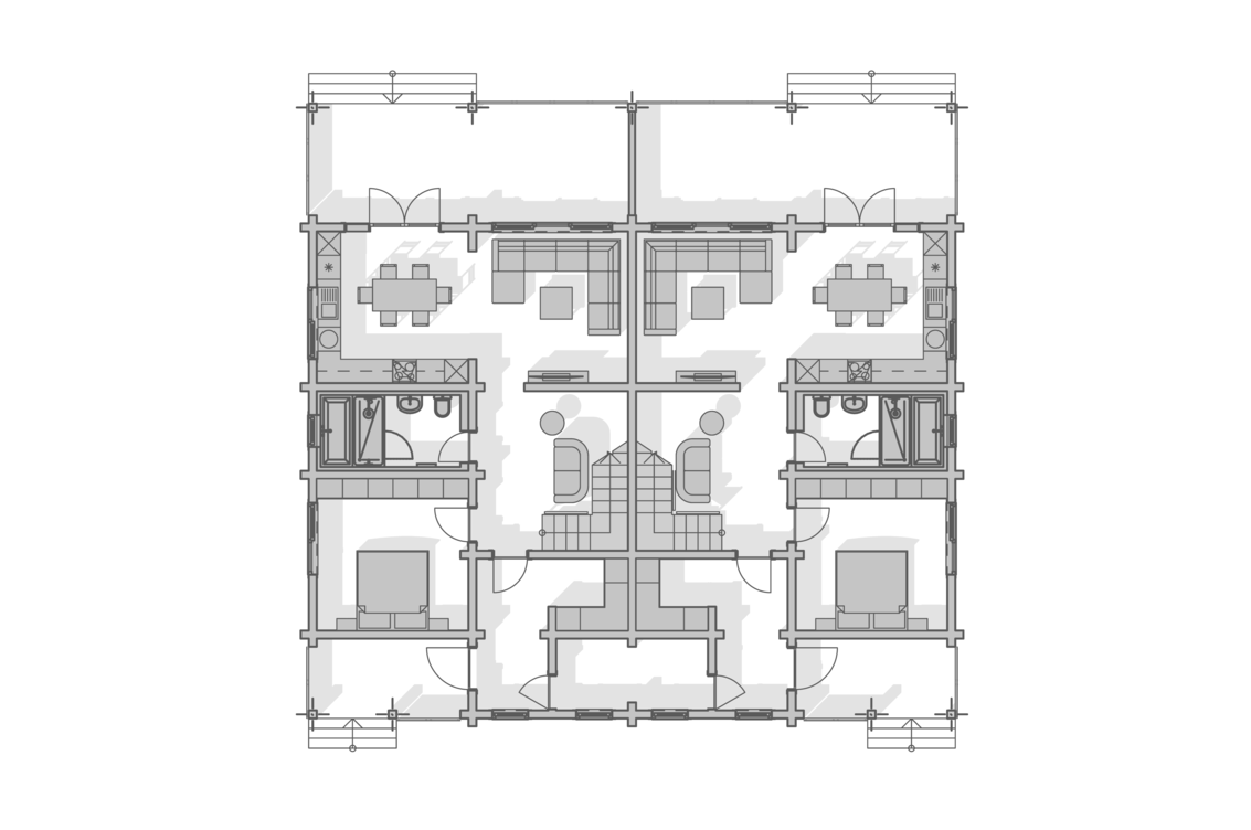
Casa in legno per 2 famiglie, progetto "Duplex"
progetto e prezzi

video
Casa in legno per 2 famiglie, progetto "Duplex"

Casa in legno per 2 famiglie, progetto "Duplex"



La casa su due piani, doppia in legno, è una casa bifamiliare divisa a metà. Ogni parte è dotata di un ingresso separato e può avere più piani. Restano in comune solo il muro e il tetto. Entrambe le parti della doppia casa in legno sono individuali. Un muro comune non divide necessariamente i soggiorni, può unire un garage o altri locali non residenziali, quindi i vicini non interferiranno l'uno con l'altro.

Le moderne case bifamiliari in legno hanno diverse caratteristiche distintive:

Casa in legno per 2 famiglie, il progetto "Duplex" è una facciata solida. Le soluzioni interne all'interno di una casa in legno possono essere radicalmente diverse, ma dall'esterno la facciata apparirà solida e specchiata.

Progetto casa in legno "Duplex", è un ingresso separato per ciascuna delle parti della casa. Certo, ci sono opzioni in cui c'è un ingresso comune alla casa, ma è molto più pratico avere ingressi separati in modo che i vicini non interferiscano tra loro.

Progetto di casa in legno "Duplex", è un numero di piani. Per impostazione predefinita, si intende un edificio a due piani, ma se necessario, è possibile costruire un piano più alto.

Un progetto di casa in legno "Duplex" è un dispositivo di misurazione individuale per consumo di elettricità, codici, riscaldamento per ogni famiglia.

Progetto casa in legno "Duplex", ha pochi vicini. Di norma, c'è solo una famiglia dietro un muro comune.

Progetto casa in legno "Duplex", questa è la presenza di un'area locale. Se lo si desidera, è possibile attrezzare un parco giochi, un capannone, un garage e altri annessi necessari per una vita confortevole.

Progetto casa in legno "Duplex", è un basso costo di manutenzione. Tutte le spese per la riparazione delle comunicazioni, il restauro delle facciate sono coperte da due famiglie.

Progetto casa in legno "Duplex", è conveniente per la consegna. I proprietari possono vivere in una parte e affittare l'altra parte, ottenendo un profitto aggiuntivo.

Contro:

Il principale svantaggio di un cottage doppio è che non è ancora una casa singola che appartiene solo a te, ci saranno comunque dei vicini, il che potrebbe comportare alcuni inconvenienti. Tuttavia, con buone relazioni amichevoli con i vicini, la loro presenza non sarà un tale svantaggio, ma piuttosto il contrario.

















Se vuoi acquistare casa in legno per 2 famiglie, progetto "Duplex" , puoi:



Altro dalla sezione Progetti di case in legno Top 40 ≈ 1000 €/m²

    Fitoncidi - sebbene questa parola non fosse conosciuta prima, ma i nostri antenati conoscevano i benefici delle case di legno e delle pareti delle case di conifere di legno. Oggi le persone sono più abituate a fare affidamento su sostanze chimiche ...
    • Tipo di edificio: Hotel
    La costruzione del centro di innovazione fatto di travi incollate, costruita da Archiline , si trova nel Sharjah Research Park , che diventerà una piattaforma per lo sviluppo di tecnologie avanzate negli Emirati Arabi Uniti. Sarà lo sviluppo di ...
    • Tipo di edificio: casa a un piano
    Questa splendida e bella casa in legno dona armonia e equilibrio alle persone quando si vuole riposare da una città affollata. Immagina: ti svegli e vedrai gli alberi dalle finestre, bevete una tazza di caffè sulla terrazza e ammirate il paesaggio. ...
    • Tipo di edificio: casa a due piani
    Casa in legno in legno lamellare, pronta per l'installazione, classe A, progetto "Till", area 84 m², spessore della parete 18 cm. Casa in legno in legno lamellare "Till" per l'autoassemblaggio! Per raggiungere il tuo obiettivo, risparmia, costruisci ...
    • Tipo di edificio: casa a due piani
    Casa di legno Numero di stanze 2 La superficie totale 220,00 m2 L'area del piano terra 134,02 m2 L'area del primo piano 80,77 m2 Numero dei piani 2 La superficie del tetto 234,80 m2 Volume di materiale della parete 120,39 m3 Set di materiale della ...
    • Tipo di edificio: casa a due piani
    Una casa spaziosa realizzata in legno lamellare è costruita in stile tradizionale, ma allo stesso tempo combina tutte le moderne tecnologie per una vita confortevole. La trave incollata profilata non richiede contrazione, il che rappresenta un ...
    • Tipo di edificio: casa a due piani
    L'acquisto di una casa è una delle acquisizioni più importanti nella vita di una persona. La casa viene abitualmente acquistata non solo per loro stessi, ma anche per i bambini, i nipoti, i pronipoti. Questo passaggio richiede un approccio ...
    • Tipo di edificio: casa a due piani
    Casa in legno "Monte Bianco" affascinante ha un design moderno e contiene tutto il necessario per un soggiorno confortevole: si può trovare abbastanza spazio per accogliere gli ospiti (al primo piano c'è una camera da letto e due ampie camere da ...
    • Tipo di edificio: casa a un piano
    Casa di legno design ottimizzato con una superficie di 120 mq, con un ampio spazio di vita, contiene due camere da letto, uno studio, un soggiorno, sala da pranzo e cucina, bagno spazioso, e un salone con camino. Grande facciata attraverso la quale ...
    • Tipo di edificio: casa a un piano
    Ancora non sai qual è il primo passo che devi compiere per realizzare il tuo sogno di una casa di legno? ArchiLine Log Houses ti può dare una risposta univoca: inizia con il progetto! Tipico progetto di casa in legno lamellare impiallacciato - ...
    • Tipo di edificio: casa a un piano
    Un'altra meravigliosa casa da sogno della compagnia ArchiLine nel tesoro per i desideri di costruire una casa di legno da un bar! Un tipico progetto di una casa fatta di legno - 80-90 metri quadrati Accogliente, confortevole, ottima opzione per una ...
    • Tipo di edificio: casa a due piani
    Ampia casa a due piani in legno lamellare di 200x150mm, con cinque camere, cucina e zona pranzo, due bagni e una terrazza. Le finestre panoramiche espandono la luce tra pianpo terra e primo piano, inoltre i lucernai posizionati sulla copertura ...
    © 2025 Case in legno Archiline
    114-49, Necrasov str., Minsk, Republic of Belarus, 220049
                                                        

    Il sito è alimentato da Nestorclub.com