x
≡ Menu
Chi siamo Progetti Contatti

Casa di legno "Miraggio" 99 m2

video
Casa di legno "Miraggio" 99 m2  Casa in legno naturale in legno lamellare impiallacciato "Miraggio" - una casa compatta con 2 camere da letto, un soggiorno e una cucina separata con accesso alla terrazza. È la soluzione ideale per chi cerca una piccola casa stabile.
..................................................................................................................................................................................................
.
INFORMAZIONI DI BASE:

Numero di piani:1Numero di camere da letto2
Spazio vitale29,51 m2Superficie di tutti i piani:93,12 m2
Terrazzo e area balcone:19,52 m2Area del tetto:188 m2
Area costruita:130 m2Prezzo:по запросу
Materiale della parete:Travi profilate incollate (180x185 mm) *
Materiale tetto:Tegole in ceramica *
Fondazione:Grigliato a pila con lastra monolitica *
Finestra:Legno *
* I materiali possono variare a seconda dei desideri del cliente


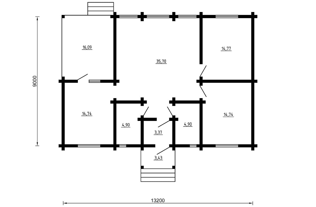
PIANTA DELLA CASA:
.
Al primo ed unico piano si trovano: un vestibolo, un locale forno, un sanitario combinato, 2 camere da letto, una cucina con accesso al terrazzo:
.





La magior parte dei nostri clienti preferisce la casa ad un piano. Pure la casa ad un piano si puo progettare in modo tale che dentro ci stanno tutte le stanze necessari per una vita confortevole fuori citta. Come esempio vi presentiamo il nostro progetto con la superfice totale di 99 m2.
Qui sotto potete vedere piu foto e la pianta di questa stupenda casa.
  1. Guarda i progetti della casa di legno
  2. Guarda il miglior progetto della casa nostra
  3. Guarda il proceso di montaggio della casa di legno
  4. Case di legno antisismiche

Più Casa di trave lamellare 99 m2 "Miraggio" :





































































Tipo di edificio
casa a un piano
Numero di camere da letto
2
Materiale della parete
Legno lamellare
Caratteristiche
casa con terrazzo


Se vuoi acquistare casa di legno "Miraggio" 99 m2 , puoi:



Altro dalla sezione MEGA TOP 6 CASE IN LEGNO

  • Tipo di edificio: casa a due piani
Casa in legno in legno lamellare impiallacciato "Casa bianca" comprende: 5 camere da letto, cucina-soggiorno 58 m2 e due bagni. Una casa del genere è perfetta per la residenza permanente di una grande famiglia amichevole. ...
  • Tipo di edificio: casa a due piani
Casa con terrazzo "Casa IT" comprende: 3 camere da letto con servizi igienici separati, una spaziosa terrazza vetrata e una cucina-soggiorno. Una casa del genere è adatta a coloro che amano ricevere ospiti o tenere riunioni di lavoro a casa. ...
  • Tipo di edificio: casa a due piani
Una casa in legno ricavata da un bar con forno e terrazzo "Faro" comprende: due camere da letto di 17 mq, una cucina-soggiorno di 50 mq e due bagni di 4,8 mq. Una casa del genere è perfetta per la residenza permanente di una famiglia di 3-4 persone. ...
  • Tipo di edificio: casa a due piani
La casa a due piani "Baden-Wurttemberg" è un esempio di combinazione di tecnologie di costruzione di case nella costruzione. Il piano superiore è in legno e il piano interrato in cemento armato, dovuto alla differenza di rilievo sul sito. ...
    Classica casa finlandese in legno "Koskenkorva" con linee architettoniche riconoscibili. Tre camere da letto, soggiorno, cucina, antibagno, terrazzo, al secondo piano - camere, bagno, balcone e soffitta. Il progetto è stato adattato per i tronchi da ...
      Una casa in legno ad alta efficienza energetica in legno lamellare, costruita in Belgio, è conforme agli attuali standard europei di efficienza energetica, grazie all'isolamento aggiuntivo delle pareti con lana di roccia Rockwool di 100 mm di ...
        Una casetta in legno con sauna realizzata in "Danubio" profilato incollato è perfetta per chi è alla ricerca di una casetta da adibire a casa estiva di campagna o stabilimento balneare. DISPOSIZIONE DELLA CASA: Al piano terra si trovano: un ...
        © 2025 Case in legno Archiline
        114-49, Necrasov str., Minsk, Republic of Belarus, 220049
                                                            

        Il sito è alimentato da Nestorclub.com