x
≡ Menu
Chi siamo Progetti Contatti

Un tipico progetto di una casa fatta di legno - 80-90 metri quadrati

Un tipico progetto di una casa fatta di legno - 80-90 metri quadrati  Ancora non sai qual è il primo passo che devi compiere per realizzare il tuo sogno di una casa di legno? ArchiLine Log Houses ti può dare una risposta univoca: inizia con il progetto!

Tipico progetto di casa in legno lamellare impiallacciato - 100-120 mq

Le idee vengono in mente, uno dopo l'altro, il pensiero di metano da un aspetto all'altro, dal layout al layout, ed è molto difficile raccogliere tutti insieme e immaginare che tipo di risultato che si è soddisfatti. Non tardare a soffrire, l'output è semplice - contatta gli specialisti! I manager esperti della compagnia ArchiLine ascolteranno tutti i vostri desideri e gli architetti li terranno in considerazione quando realizzeranno il progetto solo per voi.

L'idea principale del progetto è quella di sviluppare una casa che soddisfi tutte le esigenze moderne, come il comfort, la convenienza della pianificazione, l'individualità dell'idea. Rendilo perfetto in termini di comunicazioni, ma allo stesso tempo economico nel prezzo. Il compito non è facile, ma i nostri architetti hanno affrontato questo senza difficoltà. Il progetto del singolo solo piano casa da un bar progettato 2 ampie camere da letto, cucina, soggiorno, che è conveniente per essere in grado di ospitare tutta la famiglia, bagno, riscaldamento, disimpegno, soggiorno e terrazza dove si può mettere un tavolo e sedie e un soggiorno confortevole per una tazza di tè, leggere un libro interessante, così come raccogliere una grande azienda e rilassarsi nella natura.

Un tipico progetto di una casa fatta di legno - 80-90 metri quadrati

Un tipico progetto di una casa fatta di legno - 80-90 metri quadrati

Per capire che non si tratta di parole vuote, di seguito in questo articolo presentiamo alla vostra attenzione il progetto sviluppato di una casa di legno in legno lamellare impiallacciato, tutta la documentazione necessaria per il suo coordinamento e ulteriore costruzione.

In questo progetto abbiamo sviluppato:
  1. Scheda tecnica generale
  2. Nota esplicativa
  3. facciate
  4. Piastra di base a livello della fresa
  5. Pianta del piano con disposizione dei mobili
  6. Piano del tetto
  7. sezione


Ogni progetto ha un approccio individuale, quindi è possibile sviluppare solo i fogli di cui hai bisogno. Ora parliamo più dettagliatamente del perché questo o quel foglio è destinato e quali informazioni contiene.

Il primo foglio è necessario per informare su ciò che è stato sviluppato per te in questo progetto. Inoltre, viene presentato un elenco di documenti normativi che sono stati presi in considerazione durante l'implementazione del progetto, se necessario, è possibile familiarizzare con essi. Gli indicatori tecnici ed economici danno un'idea dell'area e del volume dell'edificio della casa.

Per capire che non si tratta di parole vuote, di seguito in questo articolo presentiamo alla vostra attenzione il progetto sviluppato di una casa di legno in legno lamellare impiallacciato, tutta la documentazione necessaria per il suo coordinamento e ulteriore costruzione. In questo progetto abbiamo sviluppato: Scheda tecnica generale Nota esplicativa facciate Piastra di base a livello della fresa Pianta del piano con disposizione dei mobili Piano del tetto sezione Ogni progetto ha un approccio individuale, quindi è possibile sviluppare solo i fogli di cui hai bisogno. Ora parliamo più dettagliatamente del perché questo o quel foglio è destinato e quali informazioni contiene. Il primo foglio è necessario per informare su ciò che è stato sviluppato per te in questo progetto. Inoltre, viene presentato un elenco di documenti normativi che sono stati presi in considerazione durante l'implementazione del progetto, se necessario, è possibile familiarizzare con essi. Gli indicatori tecnici ed economici danno un'idea dell'area e del volume dell'edificio della casa.

Il secondo foglio - una nota esplicativa - informa sulla decisione di pianificazione del volume della casa dei tuoi sogni, sulle sue strutture di supporto, sulla decorazione esterna e interna, su tutti gli elementi interni in legno. Tutto ciò è preliminare concordato con te, tenendo conto dei tuoi desideri e della tua idea.

Grazie al terzo foglio puoi vedere come apparirà la casa dei futuri sogni da tutti i lati. Sulle facciate sono posizionati tutti i marchi dei livelli, per comprendere la scala della struttura. Anche tutte le aperture sono misurate. Un tipico progetto di una casa fatta di legno - 80-90 metri quadrati

Grazie al terzo foglio puoi vedere come apparirà la casa dei futuri sogni da tutti i lati. Sulle facciate sono posizionati tutti i marchi dei livelli, per comprendere la scala della struttura. Anche tutte le aperture sono misurate.

Un tipico progetto di una casa fatta di legno - 80-90 metri quadrati

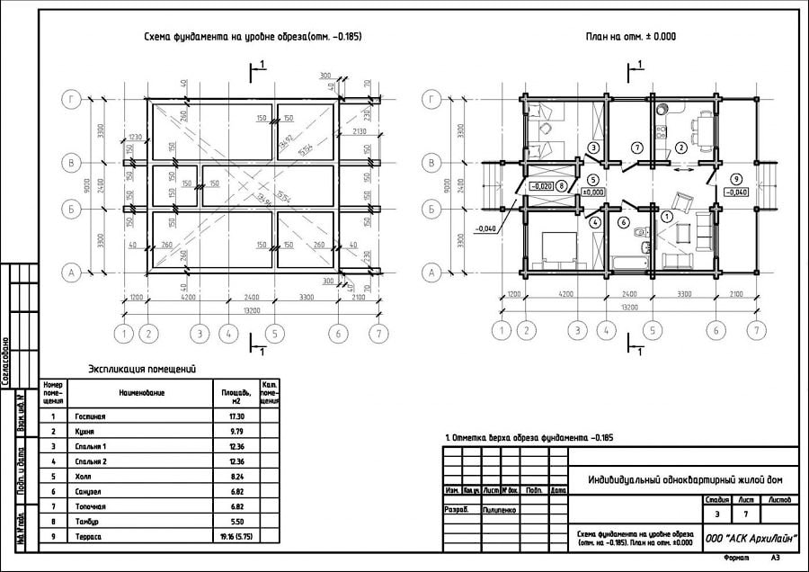
Disposizione della fondazione a livello del taglio (il livello al quale la casa stessa verrà eretta) con tutte le dimensioni, per poter misurare la fondazione eretta e confrontarla con i disegni.

Un tipico progetto di una casa fatta di legno - 80-90 metri quadrati

La planimetria della pianta del pavimento con la disposizione dell'arredamento proposta dall'architetto è necessaria per poter comprendere e presentare il layout della struttura futura e l'area di tutti i locali. Ogni fase di progettazione è coordinata con te e cambia in base ai tuoi desideri, nel caso in cui sia costruttivamente impossibile realizzare qualsiasi cosa, il progettista dell'azienda ti spiegherà perché questo non è raccomandato e offrirà un'opzione alternativa adatta a entrambe le parti.

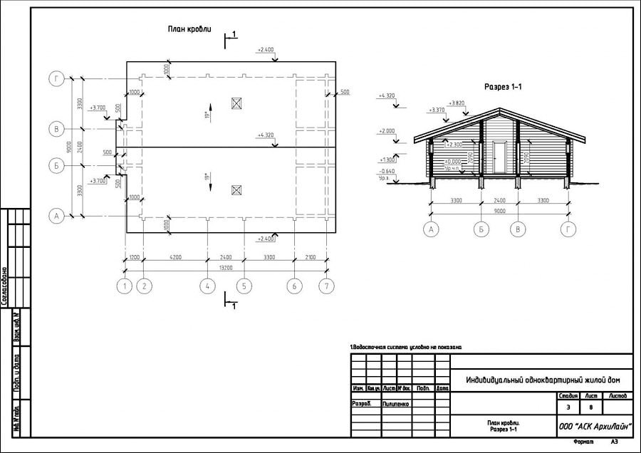
Il foglio successivo è il piano del tetto, che segna l'angolo di inclinazione e le dimensioni dei pattini, nonché i segni della cresta e il fondo degli strapiombi.
Sezione con l'indicazione del livello del pavimento pulito, delle dimensioni delle aperture e dei segni delle sporgenze e del pattino.

Un tipico progetto di una casa fatta di legno - 80-90 metri quadrati

Un tipico progetto di una casa fatta di legno - 80-90 metri quadrati

Un tipico progetto di una casa fatta di legno - 80-90 metri quadrati




Se vuoi acquistare un tipico progetto di una casa fatta di legno - 80-90 metri quadrati , puoi:



Altro dalla sezione Case di legno fino a 150 m²

    Questa splendida e bella casa in legno dona armonia e equilibrio alle persone quando si vuole riposare da una città affollata. Immagina: ti svegli e vedrai gli alberi dalle finestre, bevete una tazza di caffè sulla terrazza e ammirate ...
      Una piccola casa per gli ospiti in legno con superficie totale di 73,73 m2, con una cucina estiva e due camere - una camera da letto e salotto. Abitato della casa - 31,22 m2, una zona cucina estiva (che non è riscaldata, ma il progetto ...
        Casa in legno in legno lamellare, pronta per l'installazione, classe A, progetto "Till", area 84 m², spessore della parete 18 cm. Casa in legno in legno lamellare "Till" per l'autoassemblaggio! Per raggiungere il tuo obiettivo, risparmia, ...
          Questo progetto è il modo migliore mostra come con competenza, in modo conciso e armoniosamente per organizzare l'interno della casa di legno lamellare. Questo progetto è sia all'esterno che all'interno combina gli stili di alcuni ...
            La magior parte dei nostri clienti preferisce la casa ad un piano. Pure la casa ad un piano si puo progettare in modo tale che dentro ci stanno tutte le stanze necessari per una vita confortevole fuori citta. Come esempio vi presentiamo il nostro ...
              Una piccola guest house con cucina estiva, la zona della casa circa 52 m2, una cucina estiva - poco più di 20. Questa casa in legno - dispone di due camere da letto e soggiorno. 1. GUARDA I PROGETTI DELLA CASA DI LEGNO 2. GUARDA IL MIGLOR ...
                Casa in legno Numero di camere 1 La superficie totale 28,41 m2 Numero di piani 1 Il volume del materiale della parete 14,34 m3 Set di materiale della parete, ci possono essere altre opzioni Legno profilato 140х150mm, umidità 12% I prezzi ...
                  Bungalow di legno Numero di stanze 4 La superficie del piano 99,00 m2 La terrazza 53,20 m2 La superficie del tetto 170,00 m2 Volume di materiale della parete 19,20 m3 Set di materiale della parete, ci possono essere altre opzioni Legno lamellare ...
                    Compatto e anche una ampia casa in legno con quattro stanze. Sullo stesso piano due camere da letto, soggiorno, studio, cucina e salotto, e una terrazzo sotto un baldacchino. 1. GUARDA I PROGETTI DELLA CASA DI LEGNO 2. GUARDA IL MIGLOR PROGETTO ...
                      Casa di legno Numero di stanze 3 L'area abitabile 48,09 m2 La superficie totale 115,78 m2 La superficie del tetto 189,46 m2 Volume di materiale della parete 53,2 m3 Set di materiale della parete, ci possono essere altre opzioni Legno profilato ...
                        Casa di legno Numero di stanze 3 La superficie del piano 127,39 m2 Volume di materiale della parete 71,70 m3 Set di materiale della parete, ci possono essere altre opzioni Legno lamellare 220х180 mm 1. GUARDA I PROGETTI DELLA CASA DI LEGNO 2. GUARDA ...
                          Casa di legno Numero di stanze 4 La superficie del piano 130,00 m2 La superficie del tetto 227,00 m2 La terrazza 31,50 m2 Volume di materiale della parete 72,00 m3 Set di materiale della parete, ci possono essere altre opzioni Legno lamellare ...
                          © 2025 Case in legno Archiline
                          114-49, Necrasov str., Minsk, Republic of Belarus, 220049
                                                                              

                          Il sito è alimentato da Nestorclub.com